福井市・鯖江市・越前市(武生)・敦賀市・小浜市・坂井市・あわら市・永平寺町・大野市・勝山市の賃貸マンション・マンスリーマンション(家具・家電付)・ウィークリー マンション(家具・家電付)など、福井の賃貸・不動産のことなら「住みかえ情報館」
| 新着賃貸物件 | 新築賃貸物件 | 提案型マンション | お気に入り |
福井 賃貸マンション・不動産 TOP > 福井市 > 賃貸マンション > クレシア高木中央II 202

クレシア高木中央II 202 / 賃貸マンション 1LDK(福井市高木中央3丁目1002番)の物件情報。

福井市高木中央3丁目1002番
クレシア高木中央II 202 / 物件概要 クレシア高木中央II 202 / 室内動画 クレシア高木中央II 202 / パノラマ クレシア高木中央II 202 / 地図 クレシア高木中央II 202 / ストリートビュー
人気の北部エリア★お買物に便利♪ペット飼育可
月額保証料は賃料等総額の1%+800円/月
クレシア高木中央II 202 / 外観写真
賃料
65,000円
共益費
6,500円
駐車場
4,400円
クレシア高木中央II 202 / 物件内見予約クレシア高木中央II 202 / 仮おさえ不可クレシア高木中央II 202 / 入居申し込み
flag_action : 1 flag_web : 0 flag_others : 1 status_web_contract : 1 status_reserved : -1
  • クレシア高木中央II 202 / 写真
  • クレシア高木中央II 202 / 写真
  • クレシア高木中央II 202 / 写真
  • クレシア高木中央II 202 / 写真
  • クレシア高木中央II 202 / 写真
  • クレシア高木中央II 202 / 写真
  • クレシア高木中央II 202 / 写真
  • クレシア高木中央II 202 / 写真
  • クレシア高木中央II 202 / 写真
クレシア高木中央II 202 / お気に入りリストに追加クレシア高木中央II 202 / 印刷

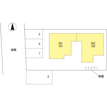
間取り図

クレシア高木中央II 202 / 間取り図

部屋割り

クレシア高木中央II 202 / 部屋割り
お問い合せ 福井営業所
LINEお問い合わせ(福井営業所)
でお問い合わせください ▶︎
LINEお問い合わせ(福井営業所)
お電話はこちら ▶︎ 0776-22-2022
クレシア高木中央II 202 / お問い合わせ
概要
住所
福井市高木中央3丁目1002番
建築年
2016.12
部屋方向
南向き
建物構造
軽量鉄骨2階
駐車場
4,400円
自転車置場
有り
物置
有り
下駄箱
有り
ハウスメーカー
ダイワハウス
2台目駐車
一部可能
間取り情報
床面積
38.05㎡
LDK
9.1帖
洋室
3帖
サンルーム
3.1帖
WIC
有り
ペット飼育
部屋情報
空き部屋
202
間取り
1LDK
入居可能日
2026/01/24
初期費用
前払家賃
75,900円
敷金
30,000円
礼金
80,000円
仲介料
75,900円
初回保証料
35,000円
火災保険
別途加入
カードキー発行料
16,500円
クリーニング費
49,500円
合計
362,800円
月額費用
賃料/月
65,000円
共益費
6,500円
駐車代
4,400円
合計
75,900円
設備
エアコン
付き
TVアンテナ
CATV
インターホン
TVインターホン
インターネット環境
無料
照明器具
付き
室内物干
付き
その他
ALSOK/SW
その他
ペアガラス
トイレ
ウォシュレット
浴室
追焚・浴室乾燥機
ガスコンロ
システムキッチン
洗面化粧台
シャンプードレッサー
洗濯置場
有り
給湯器
ガス給湯器(エコジョーズ)
ガス種類
プロパンガス
下水種類
下水道

| 福井市の賃貸マンション | 福井市のマンスリーマンション(家具・家電付) | 福井市のウィークリーマンション(家具・家電付) |

賃貸マンション
Spera
105
1LDK
福井市文京3丁目1-26
賃料
57,000円
共益費
4,000円
駐車料
0円
賃貸マンション / 1LDK
福井市の賃貸マンション / Spera / 外観写真
福井大学文京キャンパス大学橋から徒歩1分♪
福井市の賃貸マンション / Spera / 詳細
賃貸マンション
INTEGRAL Ciel
207
1LDK
福井市新田塚1丁目35番23号
賃料
59,000円
共益費
4,000円
駐車料
4,400円
賃貸マンション / 1LDK
福井市の賃貸マンション / INTEGRAL Ciel / 外観写真
築浅です♪敷金、礼金無し!WiFi無料!駅近く
福井市の賃貸マンション / INTEGRAL Ciel / 詳細
賃貸マンション
カーサ アレグリア
206
1LDK
福井市上野本町2丁目203
賃料
60,000円
共益費
3,000円
駐車料
0円
賃貸マンション / 1LDK
福井市の賃貸マンション / カーサ アレグリア / 外観写真
★築浅★Wi-Fi付き!駐車場1台込みです^^
福井市の賃貸マンション / カーサ アレグリア / 詳細
賃貸マンション
DEGNER(デグナー)
207
1LDK
福井市河合寄安町1003
賃料
60,000円
共益費
5,300円
駐車料
0円
賃貸マンション / 1LDK
福井市の賃貸マンション / DEGNER(デグナー) / 外観写真
※敷金礼金0キャンペーン(個人契約のみ)
福井市の賃貸マンション / DEGNER(デグナー) / 詳細
賃貸マンション
DEGNER(デグナー)
106
1LDK
福井市河合寄安町1003
賃料
58,000円
共益費
2,000円
駐車料
3,300円
賃貸マンション / 1LDK
福井市の賃貸マンション / DEGNER(デグナー) / 外観写真
※敷金礼金0キャンペーン(個人契約のみ)
福井市の賃貸マンション / DEGNER(デグナー) / 詳細
賃貸マンション
フォーブル川口
103
1LDK
福井市引目町9-415
賃料
58,000円
共益費
0円
駐車料
0円
賃貸マンション / 1LDK
福井市の賃貸マンション / フォーブル川口 / 外観写真
2025年12月にリノベーション!Wi-Fi無料!
福井市の賃貸マンション / フォーブル川口 / 詳細
賃貸マンション
AmiCourt
201
1LDK
福井市高木北4丁目205番地
賃料
69,000円
共益費
3,200円
駐車料
0円
賃貸マンション / 1LDK
福井市の賃貸マンション / AmiCourt / 外観写真
人気のエリアで1LDK空いてきます!!
福井市の賃貸マンション / AmiCourt / 詳細
賃貸マンション
カーサ アレグリア
106
1LDK
福井市上野本町2丁目203
賃料
60,000円
共益費
3,000円
駐車料
0円
賃貸マンション / 1LDK
福井市の賃貸マンション / カーサ アレグリア / 外観写真
★築浅★Wi-Fi付き!駐車場1台込みです^^
福井市の賃貸マンション / カーサ アレグリア / 詳細
賃貸マンション
カーサ アレグリア
201
1LDK
福井市上野本町2丁目203
賃料
60,000円
共益費
3,000円
駐車料
0円
賃貸マンション / 1LDK
福井市の賃貸マンション / カーサ アレグリア / 外観写真
★築浅★Wi-Fi付き!
福井市の賃貸マンション / カーサ アレグリア / 詳細
賃貸マンション
セゾンルミエール
201
1LDK
福井市北四ツ居町13-25-1
賃料
60,000円
共益費
0円
駐車料
0円
賃貸マンション / 1LDK
福井市の賃貸マンション / セゾンルミエール / 外観写真
2025年12月に和室から洋室へリノベーション済み!
福井市の賃貸マンション / セゾンルミエール / 詳細
賃貸マンション
セゾンルミエール
105
1LDK
福井市北四ツ居町13-25-1
賃料
55,000円
共益費
0円
駐車料
0円
賃貸マンション / 1LDK
福井市の賃貸マンション / セゾンルミエール / 外観写真
駐車場1台込みです♪2台目駐車場契約可(先着順)
福井市の賃貸マンション / セゾンルミエール / 詳細
賃貸マンション
エスペランサB
101
1LDK
福井市高木町77-58-1
賃料
57,000円
共益費
4,000円
駐車料
3,000円
賃貸マンション / 1LDK
福井市の賃貸マンション / エスペランサB / 外観写真
高木の築浅物件が空きました!
福井市の賃貸マンション / エスペランサB / 詳細
賃貸マンション
BONハイツ’92
201
1LDK
福井市文京6-29-30
賃料
42,000円
共益費
0円
駐車料
0円
賃貸マンション / 1LDK
福井市の賃貸マンション / BONハイツ’92 / 外観写真
徒歩圏内にコンビニもあり便利です!P1台付です(敷地外)
福井市の賃貸マンション / BONハイツ’92 / 詳細
賃貸マンション
みゆきハウス
06
1LDK
福井市西方2丁目26-16
賃料
41,000円
共益費
0円
駐車料
3,000円
賃貸マンション / 1LDK
福井市の賃貸マンション / みゆきハウス / 外観写真
人気のリノベーション物件!2人でのご入居も大歓迎!
福井市の賃貸マンション / みゆきハウス / 詳細
賃貸マンション
Blanc
101
1LDK
福井市高木北2丁目710
賃料
63,000円
共益費
0円
駐車料
3,000円
賃貸マンション / 1LDK
福井市の賃貸マンション / Blanc / 外観写真
角部屋が空きました!リビングにも窓があります!
福井市の賃貸マンション / Blanc / 詳細
賃貸マンション
Blanc
102
1LDK
福井市高木北2丁目710
賃料
63,000円
共益費
0円
駐車料
3,000円
賃貸マンション / 1LDK
福井市の賃貸マンション / Blanc / 外観写真
グリル付きシステムキッチンでお料理好きの方にもおすすめ!
福井市の賃貸マンション / Blanc / 詳細
賃貸マンション
カーサ・ドレッセ
101
1LDK
福井市板垣3丁目3-915
賃料
56,000円
共益費
2,000円
駐車料
3,300円
賃貸マンション / 1LDK
福井市の賃貸マンション / カーサ・ドレッセ / 外観写真
人気エリア安心のオートロック付き^^Wi-Fi使用料無料!
福井市の賃貸マンション / カーサ・ドレッセ / 詳細
賃貸マンション
カーサ・ドレッセ
102
1LDK
福井市板垣3丁目3-915
賃料
56,000円
共益費
2,000円
駐車料
3,300円
賃貸マンション / 1LDK
福井市の賃貸マンション / カーサ・ドレッセ / 外観写真
仲介手数料0円!集合玄関オートロック・Wi-Fi付き!
福井市の賃貸マンション / カーサ・ドレッセ / 詳細
賃貸マンション
カーサ・ドレッセ
116
1LDK
福井市板垣3丁目3-915
賃料
56,000円
共益費
2,000円
駐車料
3,300円
賃貸マンション / 1LDK
福井市の賃貸マンション / カーサ・ドレッセ / 外観写真
人気エリアです♪安心のオートロックとWi-Fi付き♪
福井市の賃貸マンション / カーサ・ドレッセ / 詳細
賃貸マンション
カーサ・ドレッセ
207
1LDK
福井市板垣3丁目3-915
賃料
56,000円
共益費
2,000円
駐車料
3,300円
賃貸マンション / 1LDK
福井市の賃貸マンション / カーサ・ドレッセ / 外観写真
人気エリアです♪安心のオートロックとWi-Fi付き♪
福井市の賃貸マンション / カーサ・ドレッセ / 詳細
賃貸マンション
カーサ・ドレッセ
215
1LDK
福井市板垣3丁目3-915
賃料
54,000円
共益費
2,000円
駐車料
3,300円
賃貸マンション / 1LDK
福井市の賃貸マンション / カーサ・ドレッセ / 外観写真
仲介手数料0円!安心のオートロック付きです♪
福井市の賃貸マンション / カーサ・ドレッセ / 詳細
賃貸マンション
カーサ・ドレッセ
302
1LDK
福井市板垣3丁目3-915
賃料
54,000円
共益費
2,000円
駐車料
3,300円
賃貸マンション / 1LDK
福井市の賃貸マンション / カーサ・ドレッセ / 外観写真
人気エリア♪安心のオートロック付!Wi-Fi付!
福井市の賃貸マンション / カーサ・ドレッセ / 詳細
賃貸マンション
カーサ・ドレッセ
307
1LDK
福井市板垣3丁目3-915
賃料
56,000円
共益費
2,000円
駐車料
3,300円
賃貸マンション / 1LDK
福井市の賃貸マンション / カーサ・ドレッセ / 外観写真
人気エリアです♪安心のオートロックとWi-Fi付き♪
福井市の賃貸マンション / カーサ・ドレッセ / 詳細
賃貸マンション
BONハイツ’92
102
1LDK
福井市文京6-29-30
賃料
50,000円
共益費
0円
駐車料
5,500円
賃貸マンション / 1LDK
福井市の賃貸マンション / BONハイツ’92 / 外観写真
仲介手数料0円!広々1LDK!!
福井市の賃貸マンション / BONハイツ’92 / 詳細
賃貸マンション
ヴァンベール B
202
1LDK
福井市勝見3丁目16-16
賃料
60,000円
共益費
3,500円
駐車料
3,300円
賃貸マンション / 1LDK
福井市の賃貸マンション / ヴァンベール B / 外観写真
コンビニまで徒歩3分☆便利な浴室乾燥機付きです☆
福井市の賃貸マンション / ヴァンベール B / 詳細
賃貸マンション
サン・リバー
201
1LDK
福井市西方1丁目6番17号
賃料
59,000円
共益費
4,400円
駐車料
3,300円
賃貸マンション / 1LDK
福井市の賃貸マンション / サン・リバー / 外観写真
対面キッチン★便利な立地です
福井市の賃貸マンション / サン・リバー / 詳細
賃貸マンション
メゾン・ド・ミオ
101
1LDK
福井市福1丁目206
賃料
52,000円
共益費
5,000円
駐車料
3,300円
賃貸マンション / 1LDK
福井市の賃貸マンション / メゾン・ド・ミオ / 外観写真
人気の対面キッチン♪インターネット無料☆
福井市の賃貸マンション / メゾン・ド・ミオ / 詳細
賃貸マンション
パル ティ-ルF
201
1LDK
福井市下馬2丁目2208
賃料
59,000円
共益費
4,410円
駐車料
3,300円
賃貸マンション / 1LDK
福井市の賃貸マンション / パル ティ-ルF / 外観写真
お買い物に便利な立地★コンビニまで徒歩3分♪
福井市の賃貸マンション / パル ティ-ルF / 詳細
賃貸マンション
メゾンパークス D棟
102
1LDK
福井市開発3丁目3103
賃料
55,000円
共益費
5,500円
駐車料
3,300円
賃貸マンション / 1LDK
福井市の賃貸マンション / メゾンパークス D棟 / 外観写真
国道8号線へのアクセス良好!!インターネット無料です♪
福井市の賃貸マンション / メゾンパークス D棟 / 詳細
賃貸マンション
グラディス
101
1LDK
福井市二の宮2丁目17番27号
賃料
59,000円
共益費
7,000円
駐車料
3,300円
賃貸マンション / 1LDK
福井市の賃貸マンション / グラディス / 外観写真
コンビニまで徒歩5分♪充実した設備がそろっています
福井市の賃貸マンション / グラディス / 詳細
パートナーシップ構築宣言
Copyright © 住みかえ情報館 All rights reserved.
住みかえ情報館 企業情報 営業所案内 求人情報 住みかえTV
  • 利用規約
  • 個人情報保護方針(プライバシーポリシー)
  • ケアフルハウス