福井市・鯖江市・越前市(武生)・敦賀市・小浜市・坂井市・あわら市・永平寺町・大野市・勝山市の賃貸マンション・マンスリーマンション(家具・家電付)・ウィークリー マンション(家具・家電付)など、福井の賃貸・不動産のことなら「住みかえ情報館」
| 新着賃貸物件 | 新築賃貸物件 | 提案型マンション | お気に入り |
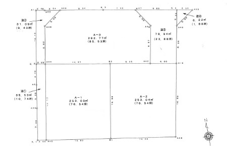
福井 賃貸マンション・不動産 TOP > 越前市(武生) > 売土地 > 売土地 越前市西庄境A-2

売土地 越前市西庄境A-2 / 売土地(越前市西庄境7字小田町17番1ほか)の物件情報。

越前市西庄境7字小田町17番1ほか
売土地 越前市西庄境A-2 / 物件概要 売土地 越前市西庄境A-2 / 室内動画 売土地 越前市西庄境A-2 / パノラマ 売土地 越前市西庄境A-2 / 地図 売土地 越前市西庄境A-2 / ストリートビュー
上水道引き込み工事済み、加入金は別途必要です。下水区域外エリアです。
売土地 越前市西庄境A-2 / 外観写真
価格
5,357,800円
面積
76.54坪
売土地 越前市西庄境A-2 / 物件内見予約売土地 越前市西庄境A-2 / 仮おさえ
住所
越前市西庄境7字小田町17番1ほか
 
価格
5,357,800円
 
態様
売主
 
仲介料
0円
 
媒介業者
㈱住みかえ情報館
 
土地情報
地目
宅地
用途地域
無指定
面積
253.04㎡ / 76.54坪
接道状況
北側
 
その他
 
 
売土地 越前市西庄境A-2 / お気に入りリストに追加売土地 越前市西庄境A-2 / 印刷

区画図

売土地 越前市西庄境A-2 / 間取り図
お問い合せ 武生営業所
LINEお問い合わせ(武生営業所)
でお問い合わせください ▶︎
LINEお問い合わせ(武生営業所)
お電話はこちら ▶︎ 0778-22-1432
売土地 越前市西庄境A-2 / お問い合わせ

| 越前市(武生)の賃貸マンション | 越前市(武生)のマンスリーマンション(家具・家電付) | 越前市(武生)のウィークリーマンション(家具・家電付) |

売土地
越前市余田町1字2番17  
越前市余田町1字2番17
価格
5,000,000円
面積
61.69坪
越前市(武生)の売土地 / 越前市余田町1字2番17 / 外観写真
前面道路は上水Φ20のみです。
越前市(武生)の売土地 / 越前市余田町1字2番17 / 詳細
売土地
越前市帆山町  
越前市帆山町5字21-41,42,39字3-3他
価格
20,078,000円
面積
200.78坪
越前市(武生)の売土地 / 越前市帆山町 / 外観写真
分筆可能です
越前市(武生)の売土地 / 越前市帆山町 / 詳細
売土地
売土地 越前市北山町58-22-16  
越前市北山町58-22-16
価格
10,528,000円
面積
150.04坪
越前市(武生)の売土地 / 売土地 越前市北山町58-22-16 / 外観写真
越前市(武生)の売土地 / 売土地 越前市北山町58-22-16 / 詳細
売土地
売土地 越前市北山町58-19-7  
越前市北山町58-19-7
価格
7,805,000円
面積
111.5坪
越前市(武生)の売土地 / 売土地 越前市北山町58-19-7 / 外観写真
【閑静な住宅街!】
越前市(武生)の売土地 / 売土地 越前市北山町58-19-7 / 詳細
売土地
売土地 越前市広瀬町87字1-4  
越前市広瀬町87字1-4
価格
2,000,000円
面積
89.92坪
越前市(武生)の売土地 / 売土地 越前市広瀬町87字1-4 / 外観写真
【閑静な住宅街!】
越前市(武生)の売土地 / 売土地 越前市広瀬町87字1-4 / 詳細
売土地
売土地 越前市南1丁目7-3  
越前市南1丁目11字10番18
価格
9,500,000円
面積
89.84坪
越前市(武生)の売土地 / 売土地 越前市南1丁目7-3 / 外観写真
武生南小学校区域です♪
越前市(武生)の売土地 / 売土地 越前市南1丁目7-3 / 詳細
売土地
売土地 越前市高森町21字4番6,越前市大虫町44字1番3  
越前市高森町21字4番6,越前市大虫町44字1番3
価格
500,000円
面積
115.38坪
越前市(武生)の売土地 / 売土地 越前市高森町21字4番6,越前市大虫町44字1番3 / 外観写真
【閑静な住宅街!】
越前市(武生)の売土地 / 売土地 越前市高森町21字4番6,越前市大虫町44字1番3 / 詳細
売土地
売土地 粟田部町26字22番4  
越前市粟田部町26字22番4
価格
3,000,000円
面積
60.66坪
越前市(武生)の売土地 / 売土地 粟田部町26字22番4 / 外観写真
【格安!】
越前市(武生)の売土地 / 売土地 粟田部町26字22番4 / 詳細
売土地
売土地 越前市月見町130  
越前市月見町130
価格
8,766,450円
面積
76.23坪
越前市(武生)の売土地 / 売土地 越前市月見町130 / 外観写真
【閑静な住宅街!】
越前市(武生)の売土地 / 売土地 越前市月見町130 / 詳細
売土地
越前市広瀬町168-1-4、5(地番)  
越前市広瀬町168-1-4、5(地番)
価格
4,000,000円
面積
79.44坪
越前市(武生)の売土地 / 越前市広瀬町168-1-4、5(地番) / 外観写真
【閑静な住宅街!】
越前市(武生)の売土地 / 越前市広瀬町168-1-4、5(地番) / 詳細
売土地
売土地 氷坂町28字9-10  
越前市氷坂町28字9-10
価格
10,350,000円
面積
345坪
越前市(武生)の売土地 / 売土地 氷坂町28字9-10 / 外観写真
上水道全面配管あり敷地内への引き込み工事は要確認です。
越前市(武生)の売土地 / 売土地 氷坂町28字9-10 / 詳細
売土地
売土地 越前市上太田町30-2-1  
越前市上太田町30-2-1
価格
18,562,500円
面積
109.8坪
越前市(武生)の売土地 / 売土地 越前市上太田町30-2-1 / 外観写真
【好立地!】
越前市(武生)の売土地 / 売土地 越前市上太田町30-2-1 / 詳細
売土地
売物件 越前市南三丁目10字30番6  
越前市南三丁目10字30番6
価格
4,000,000円
面積
89.81坪
越前市(武生)の売土地 / 売物件 越前市南三丁目10字30番6 / 外観写真
南小学校近く★現状引き渡しです。
越前市(武生)の売土地 / 売物件 越前市南三丁目10字30番6 / 詳細
売土地
売土地 越前市沢町54  
越前市沢町54
価格
21,382,650円
面積
158.11坪
越前市(武生)の売土地 / 売土地 越前市沢町54 / 外観写真
※建物は取り壊し中です。建物下に地中埋設物があります。
越前市(武生)の売土地 / 売土地 越前市沢町54 / 詳細
売土地
売土地 越前市矢放町15字5番地  
越前市矢放町15字5番地
価格
31,677,360円
面積
395.97坪
越前市(武生)の売土地 / 売土地 越前市矢放町15字5番地 / 外観写真
【好立地!】
越前市(武生)の売土地 / 売土地 越前市矢放町15字5番地 / 詳細
売土地
売土地 越前市西庄境A-1  
越前市西庄境7字小田町17番1ほか
価格
5,587,420円
面積
76.54坪
越前市(武生)の売土地 / 売土地 越前市西庄境A-1 / 外観写真
上水道引き込み工事済み、加入金は別途必要です。下水区域外エリアです。
越前市(武生)の売土地 / 売土地 越前市西庄境A-1 / 詳細
売土地
越前市高瀬1丁目141分譲地141-6  
越前市高瀬1丁目141-6
価格
10,722,600円
面積
76.59坪
武生西小学校・武生第二中学校校区
越前市(武生)の売土地 / 越前市高瀬1丁目141分譲地141-6 / 詳細
売土地
売土地 越前市西庄境A-2  
越前市西庄境7字小田町17番1ほか
価格
5,357,800円
面積
76.54坪
越前市(武生)の売土地 / 売土地 越前市西庄境A-2 / 外観写真
上水道引き込み工事済み、加入金は別途必要です。下水区域外エリアです。
越前市(武生)の売土地 / 売土地 越前市西庄境A-2 / 詳細
売土地
売土地 越前市西庄境A-3  
越前市西庄境7字小田町17番1他
価格
6,500,280円
面積
85.53坪
越前市(武生)の売土地 / 売土地 越前市西庄境A-3 / 外観写真
上水道引き込み工事済み、加入金は別途必要です。下水区域外エリアです。
越前市(武生)の売土地 / 売土地 越前市西庄境A-3 / 詳細
売土地
中古住宅 越前市文京2丁目9字6番地1  
越前市文京2丁目9字6番地1
価格
8,900,000円
面積
98.91坪
越前市(武生)の売土地 / 中古住宅 越前市文京2丁目9字6番地1 / 外観写真
※現状引渡です※ 南小学校近く★
越前市(武生)の売土地 / 中古住宅 越前市文京2丁目9字6番地1 / 詳細
パートナーシップ構築宣言
Copyright © 住みかえ情報館 All rights reserved.
住みかえ情報館 企業情報 営業所案内 求人情報 住みかえTV
  • 利用規約
  • 個人情報保護方針(プライバシーポリシー)
  • ケアフルハウス