福井市・鯖江市・越前市(武生)・敦賀市・小浜市・坂井市・あわら市・永平寺町・大野市・勝山市の賃貸マンション・マンスリーマンション(家具・家電付)・ウィークリー マンション(家具・家電付)など、福井の賃貸・不動産のことなら「住みかえ情報館」
| 新着賃貸物件 | 新築賃貸物件 | 提案型マンション | お気に入り |
福井 賃貸マンション・不動産 TOP > 小浜市 > 貸家 > みゆき庵 1

みゆき庵 1 / 貸家 3LDK(小浜市小浜飛鳥23番地)の物件情報。

小浜市小浜飛鳥23番地
みゆき庵 1 / 物件概要 みゆき庵 1 / 室内動画 みゆき庵 1 / パノラマ みゆき庵 1 / 地図 みゆき庵 1 / ストリートビュー
ペット可能☆
ペット飼育(犬のみ)の場合は賃料3,000円UP、別途ペット保証金必要です。別途保証金も必要になります。
みゆき庵 1 / 外観写真
賃料
70,000円
共益費
0円
駐車場
0円
みゆき庵 1 / 物件内見予約みゆき庵 1 / 仮おさえみゆき庵 1 / 入居申し込み
  • みゆき庵 1 / 写真
  • みゆき庵 1 / 写真
  • みゆき庵 1 / 写真
  • みゆき庵 1 / 写真
  • みゆき庵 1 / 写真
  • みゆき庵 1 / 写真
  • みゆき庵 1 / 写真
  • みゆき庵 1 / 写真
  • みゆき庵 1 / 写真
  • みゆき庵 1 / 写真
  • みゆき庵 1 / 写真
  • みゆき庵 1 / 写真
  • みゆき庵 1 / 写真
  • みゆき庵 1 / 写真
みゆき庵 1 / お気に入りリストに追加みゆき庵 1 / 印刷

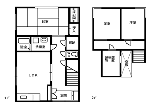
間取り図

みゆき庵 1 / 間取り図
お問い合せ 小浜営業所
LINEお問い合わせ(小浜営業所)
でお問い合わせください ▶︎
LINEお問い合わせ(小浜営業所)
お電話はこちら ▶︎ 0770-52-5577
みゆき庵 1 / お問い合わせ
概要
住所
小浜市小浜飛鳥23番地
建築年
1980.01
部屋方向
南向き
建物構造
木造2階
駐車場
縦列2台可能
2台目駐車
有り
自転車置場
なし
物置
無し
下駄箱
有り
学校区
小浜小学校、小浜中学校
間取り情報
床面積
98.34㎡
LDK
10帖
1F和室
7.5帖
2F洋室①
6帖
2F洋室②
4.5帖
納戸
3帖
部屋情報
間取り
3LDK
入居可能日
2026/05/初旬
初期費用
前払家賃
70,000円
敷金
10,000円
クリーニング費
77,000円
仲介料
77,000円
火災保険
20,000円
町内会費
別途
鍵取替費
別途
保証金
22,000円
24時間サポート/月
990円
CATV代/月
1,650円
合計
278,640円
月額費用
賃料/月
70,000円
共益費
0円
駐車代
0円
24時間サポート/月
990円
CATV代/月
1,650円
合計
72,640円
設備
エアコン
3台付き
TVアンテナ
ケーブルテレビ
TV配線
1階・2階
インターホン
有り
電話配管
1階
照明器具
付き
トイレ
ウォッシュレット
浴室
追い焚き機能
ガスコンロ
IHシステムキッチン
洗面化粧台
シャンプードレッサー
洗濯置場
有り
下水種類
下水道
給湯器
エコキュート

| 小浜市の賃貸マンション | 小浜市のマンスリーマンション(家具・家電付) | 小浜市のウィークリーマンション(家具・家電付) |

貸家
みゆき庵
1
3LDK
小浜市小浜飛鳥23番地
賃料
70,000円
共益費
0円
駐車料
0円
小浜市の貸家 / みゆき庵 / 外観写真
ペット可能☆
小浜市の貸家 / みゆき庵 / 詳細
パートナーシップ構築宣言
Copyright © 住みかえ情報館 All rights reserved.
住みかえ情報館 企業情報 営業所案内 求人情報 住みかえTV
  • 利用規約
  • 個人情報保護方針(プライバシーポリシー)
  • ケアフルハウス