福井市・鯖江市・越前市(武生)・敦賀市・小浜市・坂井市・あわら市・永平寺町・大野市・勝山市の賃貸マンション・マンスリーマンション(家具・家電付)・ウィークリー マンション(家具・家電付)など、福井の賃貸・不動産のことなら「住みかえ情報館」
| 新着賃貸物件 | 新築賃貸物件 | 提案型マンション | お気に入り |
福井 賃貸マンション・不動産 TOP > 福井市 > 賃貸マンション > フルール大和 C 202

フルール大和 C 202 / 賃貸マンション 2DK(福井市灯明寺4丁目2102)の物件情報。

福井市灯明寺4丁目2102
フルール大和 C 202 / 物件概要 フルール大和 C 202 / 室内動画 フルール大和 C 202 / パノラマ フルール大和 C 202 / 地図 フルール大和 C 202 / ストリートビュー
オール電化☆インターネット無料♪
月額保証料は賃料等総額の1%+800円/月
フルール大和 C 202 / 外観写真
賃料
63,000円
共益費
6,500円
駐車場
3,300円
フルール大和 C 202 / 物件内見予約フルール大和 C 202 / 仮おさえ不可フルール大和 C 202 / 入居申し込み
flag_action : 1 flag_web : 0 flag_others : 1 status_web_contract : 1 status_reserved : -1
フルール大和 C 202 / お気に入りリストに追加フルール大和 C 202 / 印刷

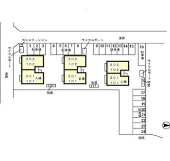
間取り図

フルール大和 C 202 / 間取り図

部屋割り

フルール大和 C 202 / 部屋割り
お問い合せ 福井営業所
LINEお問い合わせ(福井営業所)
でお問い合わせください ▶︎
LINEお問い合わせ(福井営業所)
お電話はこちら ▶︎ 0776-22-2022
フルール大和 C 202 / お問い合わせ
概要
住所
福井市灯明寺4丁目2102
建築年
2007.01
建物構造
軽量鉄骨2階
部屋方向
南向き
駐車場
3,300円
2台目駐車
2,200円(並列)
自転車置場
有り
物置
有り
下駄箱
有り
ハウスメーカー
ダイワハウス
間取り情報
床面積
45.42㎡
洋室①
6帖
洋室②
6帖
DK
7.5帖
バルコニー
有り
部屋情報
空き部屋
202
間取り
2DK
入居可能日
2026/03/28
初期費用
前払家賃
72,800円
敷金
30,000円
礼金
50,000円
仲介料
72,600円
初回保証料
35,000円
火災保険
別途加入
カードキー発行料
16,500円
その他①
71,500円
合計
348,400円
月額費用
賃料/月
63,000円
共益費
6,500円
駐車代
3,300円
合計
72,800円
設備
エアコン
付き
TVアンテナ
ケーブルTV
インターホン
TVインターホン
インターネット環境
無料
室内物干
付き
その他
ペアガラス
照明器具
照明器具
トイレ
ウォシュレット
浴室
シャワー
洗面化粧台
シャンプードレッサー
洗濯置場
有り
ガスコンロ
IHクッキングヒーター
給湯器
電気温水器
ガス種類
無し
下水種類
下水道

| 福井市の賃貸マンション | 福井市のマンスリーマンション(家具・家電付) | 福井市のウィークリーマンション(家具・家電付) |

賃貸マンション
高木一番館B棟
202
2DK
福井市高木1丁目319
賃料
59,000円
共益費
0円
駐車料
0円
賃貸マンション / 2K・2DK
福井市の賃貸マンション / 高木一番館B棟 / 外観写真
高木のペット可物件が空きました!
福井市の賃貸マンション / 高木一番館B棟 / 詳細
賃貸マンション
高木一番館G棟
101
2DK
福井市高木1丁目1丁目315
賃料
59,000円
共益費
0円
駐車料
0円
賃貸マンション / 2K・2DK
福井市の賃貸マンション / 高木一番館G棟 / 外観写真
ファミリー・カップルにおすすめ!駐車場2台付き!
福井市の賃貸マンション / 高木一番館G棟 / 詳細
賃貸マンション
高木一番館A棟
202
2DK
福井市高木1丁目319
賃料
59,000円
共益費
0円
駐車料
0円
賃貸マンション / 2K・2DK
福井市の賃貸マンション / 高木一番館A棟 / 外観写真
★ペット飼育可★
福井市の賃貸マンション / 高木一番館A棟 / 詳細
賃貸マンション
高木一番館B棟
102
2DK
福井市高木1丁目319
賃料
59,000円
共益費
0円
駐車料
0円
賃貸マンション / 2K・2DK
福井市の賃貸マンション / 高木一番館B棟 / 外観写真
人気の高木エリアで空いてきました!
福井市の賃貸マンション / 高木一番館B棟 / 詳細
賃貸マンション
高木一番館C棟
102
2DK
福井市高木1丁目1丁目319
賃料
59,000円
共益費
0円
駐車料
0円
賃貸マンション / 2K・2DK
福井市の賃貸マンション / 高木一番館C棟 / 外観写真
駐車場2台付き!ファミリー・カップルにおすすめ★
福井市の賃貸マンション / 高木一番館C棟 / 詳細
賃貸マンション
高木一番館G棟
102
2DK
福井市高木1丁目1丁目315
賃料
59,000円
共益費
0円
駐車料
0円
賃貸マンション / 2K・2DK
福井市の賃貸マンション / 高木一番館G棟 / 外観写真
ペット飼育可物件です!!
福井市の賃貸マンション / 高木一番館G棟 / 詳細
賃貸マンション
高木一番館H棟
102
2DK
福井市高木1丁目1丁目315
賃料
59,000円
共益費
0円
駐車料
0円
賃貸マンション / 2K・2DK
福井市の賃貸マンション / 高木一番館H棟 / 外観写真
人気の高木エリア!
福井市の賃貸マンション / 高木一番館H棟 / 詳細
賃貸マンション
高木一番館H棟
201
2DK
福井市高木1丁目1丁目315
賃料
59,000円
共益費
0円
駐車料
0円
賃貸マンション / 2K・2DK
福井市の賃貸マンション / 高木一番館H棟 / 外観写真
人気の高木エリアで!駐車場2台付きです!
福井市の賃貸マンション / 高木一番館H棟 / 詳細
賃貸マンション
みゆきハウス
24
2K
福井市西方2丁目26-16
賃料
30,000円
共益費
0円
駐車料
3,000円
賃貸マンション / 2K・2DK
福井市の賃貸マンション / みゆきハウス / 外観写真
リーズナブルな物件です!
福井市の賃貸マンション / みゆきハウス / 詳細
賃貸マンション
メゾンドルーブル
202
2K
福井市手寄1丁目13-9
賃料
32,000円
共益費
0円
賃貸マンション / 2K・2DK
福井市の賃貸マンション / メゾンドルーブル / 外観写真
福井駅まで徒歩2分!
福井市の賃貸マンション / メゾンドルーブル / 詳細
賃貸マンション
みゆきハウス
22
2K
福井市西方2丁目26-16
賃料
30,000円
共益費
0円
駐車料
3,300円
賃貸マンション / 2K・2DK
福井市の賃貸マンション / みゆきハウス / 外観写真
8号線に出やすい好立地物件!
福井市の賃貸マンション / みゆきハウス / 詳細
賃貸マンション
みゆきハウス
27
2K
福井市西方2丁目26-16
賃料
35,000円
共益費
0円
駐車料
3,300円
賃貸マンション / 2K・2DK
福井市の賃貸マンション / みゆきハウス / 外観写真
仲介手数料0円!バス停近く物件です!
福井市の賃貸マンション / みゆきハウス / 詳細
賃貸マンション
VALUGE豊岡
C102
2K
福井市豊岡2丁目4-11
賃料
55,000円
共益費
4,500円
駐車料
0円
賃貸マンション / 2K・2DK
福井市の賃貸マンション / VALUGE豊岡 / 外観写真
サンルーム付きで雨の日に便利です★好立地★
福井市の賃貸マンション / VALUGE豊岡 / 詳細
賃貸マンション
カーサ Hana B棟
202
2DK
福井市門前2丁目118番地
賃料
50,000円
共益費
4,900円
駐車料
5,500円
賃貸マンション / 2K・2DK
福井市の賃貸マンション / カーサ Hana B棟 / 外観写真
お買い物に便利な立地★
福井市の賃貸マンション / カーサ Hana B棟 / 詳細
賃貸マンション
コンフォール21
101
2DK
福井市若杉3丁目105
賃料
61,000円
共益費
5,000円
駐車料
2,200円
賃貸マンション / 2K・2DK
福井市の賃貸マンション / コンフォール21 / 外観写真
インターネット無料☆お買物に便利な立地です♪
福井市の賃貸マンション / コンフォール21 / 詳細
賃貸マンション
コーポ チェリッシュ B
101
2DK
福井市花堂東2丁目901
賃料
64,000円
共益費
8,500円
駐車料
3,300円
賃貸マンション / 2K・2DK
福井市の賃貸マンション / コーポ チェリッシュ B / 外観写真
ペット飼育可☆コンビニまで徒歩4分♪
福井市の賃貸マンション / コーポ チェリッシュ B / 詳細
賃貸マンション
ファミール ハウスIII B
203
2DK
福井市東森田4丁目112番地
賃料
52,000円
共益費
5,000円
駐車料
5,500円
賃貸マンション / 2K・2DK
福井市の賃貸マンション / ファミール ハウスIII B / 外観写真
ドラッグストアまで徒歩5分☆
福井市の賃貸マンション / ファミール ハウスIII B / 詳細
賃貸マンション
ホープ・ハルルン
203
2DK
福井市下馬3丁目910
賃料
51,500円
共益費
3,000円
駐車料
4,400円
賃貸マンション / 2K・2DK
福井市の賃貸マンション / ホープ・ハルルン / 外観写真
【好立地!】
福井市の賃貸マンション / ホープ・ハルルン / 詳細
賃貸マンション
シャン・ド・フル-ル E
201
2DK
福井市東森田4丁目111番地
賃料
57,000円
共益費
4,400円
駐車料
3,300円
賃貸マンション / 2K・2DK
【好立地!】
福井市の賃貸マンション / シャン・ド・フル-ル E / 詳細
賃貸マンション
リビングタウン南四ツ居 C
201
2DK
福井市南四ツ居2丁目16-23
賃料
57,000円
共益費
6,500円
駐車料
3,300円
賃貸マンション / 2K・2DK
福井市の賃貸マンション / リビングタウン南四ツ居 C / 外観写真
広々一坪風呂♪追い焚き機能付き♪
福井市の賃貸マンション / リビングタウン南四ツ居 C / 詳細
賃貸マンション
ピースフィールズ
102
2DK
福井市馬垣町板垣境504
賃料
58,000円
共益費
6,500円
駐車料
4,400円
賃貸マンション / 2K・2DK
福井市の賃貸マンション / ピースフィールズ / 外観写真
国道8号線までのアクセス良好☆
福井市の賃貸マンション / ピースフィールズ / 詳細
賃貸マンション
Manor House C・H
202
2DK
福井市福2丁目1002
賃料
61,000円
共益費
4,200円
駐車料
3,300円
賃貸マンション / 2K・2DK
福井市の賃貸マンション / Manor House C・H / 外観写真
ペット飼育可☆サンルーム・ウォークインクローゼット有り
福井市の賃貸マンション / Manor House C・H / 詳細
賃貸マンション
コンフォール21
102
2DK
福井市若杉3丁目105
賃料
60,000円
共益費
5,000円
駐車料
2,200円
賃貸マンション / 2K・2DK
福井市の賃貸マンション / コンフォール21 / 外観写真
お買い物に便利な周辺環境です♪
福井市の賃貸マンション / コンフォール21 / 詳細
賃貸マンション
ピースフィールズ
201
2DK
福井市馬垣町板垣境504
賃料
58,000円
共益費
6,500円
駐車料
4,400円
賃貸マンション / 2K・2DK
福井市の賃貸マンション / ピースフィールズ / 外観写真
国道8号線までのアクセス良好☆
福井市の賃貸マンション / ピースフィールズ / 詳細
賃貸マンション
MADRIDII
202
2DK
福井市高木町第54号15番地3
賃料
83,000円
共益費
6,000円
駐車料
3,300円
賃貸マンション / 2K・2DK
福井市の賃貸マンション / MADRIDII / 外観写真
オール電化★インターネット無料★ウォークインクローゼット
福井市の賃貸マンション / MADRIDII / 詳細
賃貸マンション
ハイツ水越 B
201
2K
福井市水越2丁目205
賃料
40,000円
共益費
0円
駐車料
3,300円
賃貸マンション / 2K・2DK
福井市の賃貸マンション / ハイツ水越 B / 外観写真
都市ガス☆お買い物に便利な立地です^^
福井市の賃貸マンション / ハイツ水越 B / 詳細
賃貸マンション
フルハウス文京
101
2DK
福井市文京6丁目2番22号
賃料
62,500円
共益費
2,500円
駐車料
3,300円
賃貸マンション / 2K・2DK
福井市の賃貸マンション / フルハウス文京 / 外観写真
人気のメゾネットタイプ♪お買い物に便利な立地です★
福井市の賃貸マンション / フルハウス文京 / 詳細
賃貸マンション
カ-サ セラフィ-ノ
102
2DK
福井市上森田5丁目815
賃料
49,000円
共益費
3,600円
駐車料
3,300円
賃貸マンション / 2K・2DK
福井市の賃貸マンション / カ-サ セラフィ-ノ / 外観写真
エアコン2台付き☆サンルーム有り☆
福井市の賃貸マンション / カ-サ セラフィ-ノ / 詳細
賃貸マンション
コーポかねとも B棟
102
2DK
福井市和田東2丁目1701
賃料
57,000円
共益費
4,500円
駐車料
2,200円
賃貸マンション / 2K・2DK
福井市の賃貸マンション / コーポかねとも B棟 / 外観写真
済生会病院まで徒歩5分
福井市の賃貸マンション / コーポかねとも B棟 / 詳細
賃貸マンション
ハイツ水越 A
203
2K
福井市水越2丁目305
賃料
32,500円
共益費
2,000円
駐車料
3,300円
賃貸マンション / 2K・2DK
福井市の賃貸マンション / ハイツ水越 A / 外観写真
お買い物に便利な立地です♪
福井市の賃貸マンション / ハイツ水越 A / 詳細
パートナーシップ構築宣言
Copyright © 住みかえ情報館 All rights reserved.
住みかえ情報館 企業情報 営業所案内 求人情報 住みかえTV
  • 利用規約
  • 個人情報保護方針(プライバシーポリシー)
  • ケアフルハウス