福井市・鯖江市・越前市(武生)・敦賀市・小浜市・坂井市・あわら市・永平寺町・大野市・勝山市の賃貸マンション・マンスリーマンション(家具・家電付)・ウィークリー マンション(家具・家電付)など、福井の賃貸・不動産のことなら「住みかえ情報館」
| 新着賃貸物件 | 新築賃貸物件 | 提案型マンション | お気に入り |
福井 賃貸マンション・不動産 TOP > 越前市(武生) > 売土地 > 売土地 越前市西庄境A-3

売土地 越前市西庄境A-3 / 売土地(越前市西庄境7字小田町17番1他)の物件情報。

越前市西庄境7字小田町17番1他
売主
上水道引き込み工事済み、加入金は別途必要です。下水区域外エリアです。

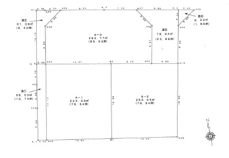
間取り図

売土地 越前市西庄境A-3 / 間取り図
売土地 越前市西庄境A-3 / 外観写真

地図

85.53坪
価格
6,500,280円
価格内訳
価格
6,500,280円
仲介料
0円
媒介業者
㈱住みかえ情報館
 
土地情報
地目
宅地
用途地域
無指定
面積
282.77㎡ / 85.53坪
接道状況
北側
 
その他
 
 
株式会社 住みかえ情報館
お問い合せ 武生営業所 売土地 越前市西庄境A-3 / 電話 0778-22-1432
パートナーシップ構築宣言
Copyright © 住みかえ情報館 All rights reserved.
住みかえ情報館 企業情報 営業所案内 求人情報 住みかえTV
  • 利用規約
  • 個人情報保護方針(プライバシーポリシー)
  • ケアフルハウス