福井市・鯖江市・越前市(武生)・敦賀市・小浜市・坂井市・あわら市・永平寺町・大野市・勝山市の賃貸マンション・マンスリーマンション(家具・家電付)・ウィークリー マンション(家具・家電付)など、福井の賃貸・不動産のことなら「住みかえ情報館」
| 新着賃貸物件 | 新築賃貸物件 | 提案型マンション | お気に入り |
福井 賃貸マンション・不動産 TOP > 福井市 > 賃貸マンション > メゾン定正 A 105

メゾン定正 A 105 / 賃貸マンション 2LDK(福井市定正町804番地)の物件情報。

福井市定正町804番地
メゾン定正 A 105 / 物件概要 メゾン定正 A 105 / 室内動画 メゾン定正 A 105 / パノラマ メゾン定正 A 105 / 地図 メゾン定正 A 105 / ストリートビュー
追焚機能・浴室乾燥機付き一坪風呂☆
月額保証料は賃料等総額の1%+800円/月
メゾン定正 A 105 / 外観写真
賃料
68,000円
共益費
6,500円
駐車場
5,500円
メゾン定正 A 105 / 物件内見予約メゾン定正 A 105 / 仮おさえ不可メゾン定正 A 105 / 入居申し込み
flag_action : 1 flag_web : 0 flag_others : 1 status_web_contract : 1 status_reserved : -1
  • メゾン定正 A 105 / 写真
  • メゾン定正 A 105 / 写真
  • メゾン定正 A 105 / 写真
  • メゾン定正 A 105 / 写真
  • メゾン定正 A 105 / 写真
  • メゾン定正 A 105 / 写真
  • メゾン定正 A 105 / 写真
  • メゾン定正 A 105 / 写真
メゾン定正 A 105 / お気に入りリストに追加メゾン定正 A 105 / 印刷

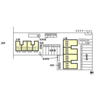
間取り図

メゾン定正 A 105 / 間取り図

部屋割り

メゾン定正 A 105 / 部屋割り
お問い合せ 坂井営業所
LINEお問い合わせ(坂井営業所)
でお問い合わせください ▶︎
LINEお問い合わせ(坂井営業所)
お電話はこちら ▶︎ 0776-51-2122
メゾン定正 A 105 / お問い合わせ
概要
住所
福井市定正町804番地
建築年
2007.09
部屋方向
南向き
建物構造
軽量鉄骨3階
駐車場
5,500円(縦列)
2台目駐車
付き(縦列)
自転車置場
有り
物置
有り
下駄箱
有り
ハウスメーカー
ダイワハウス
その他
オートロック
その他
宅配BOX
間取り情報
床面積
58.07㎡
洋室①
6帖
洋室②
6.5帖
LDK
11帖
WIC
有り
バルコニー
有り
部屋情報
空き部屋
105
間取り
2LDK
入居可能日
2026/02/14
初期費用
前払家賃
80,000円
敷金
30,000円
礼金
68,000円
仲介料
80,300円
初回保証料
35,000円
火災保険
別途加入
カードキー発行料
16,500円
クリーニング費
71,500円
合計
381,300円
月額費用
賃料/月
68,000円
共益費
6,500円
駐車代
5,500円
合計
80,000円
設備
エアコン
付き
TVアンテナ
ケーブルTV
インターホン
TVインターホン
インターネット環境
無料
照明器具
付き
室内物干
付き
その他
ペアガラス/防犯ガラス
その他
床下収納
トイレ
ウォシュレット
浴室
追焚・浴室乾燥機付き
洗面化粧台
シャンプードレッサー
洗濯置場
有り
ガスコンロ
無し
給湯器
ガスボイラー
ガス種類
プロパンガス
下水種類
下水道

| 福井市の賃貸マンション | 福井市のマンスリーマンション(家具・家電付) | 福井市のウィークリーマンション(家具・家電付) |

賃貸マンション
Ks Lumiere
301
2LDK
福井市長本町122番1
賃料
65,000円
共益費
0円
駐車料
3,000円
賃貸マンション / 2LDK
福井市の賃貸マンション / Ks Lumiere / 外観写真
1ヵ月分賃料フリーレント!(2年以内で解約違約金あり)
福井市の賃貸マンション / Ks Lumiere / 詳細
賃貸マンション
Ks Lumiere
302
2LDK
福井市長本町122番1
賃料
65,000円
共益費
0円
駐車料
5,000円
賃貸マンション / 2LDK
福井市の賃貸マンション / Ks Lumiere / 外観写真
1ヵ月分賃料フリーレント!(2年以内で解約違約金あり)
福井市の賃貸マンション / Ks Lumiere / 詳細
賃貸マンション
Ks Lumiere
502
2LDK
福井市長本町122番1
賃料
65,000円
共益費
0円
駐車料
3,000円
賃貸マンション / 2LDK
福井市の賃貸マンション / Ks Lumiere / 外観写真
オール電化の2LDK!!Wi-Fi無料です(*^^*)
福井市の賃貸マンション / Ks Lumiere / 詳細
賃貸マンション
高木一番館F棟
202
2LDK
福井市高木1丁目1丁目315
賃料
62,000円
共益費
0円
駐車料
0円
賃貸マンション / 2LDK
福井市の賃貸マンション / 高木一番館F棟 / 外観写真
人気の対面キッチン♪駐車場2台付き!
福井市の賃貸マンション / 高木一番館F棟 / 詳細
賃貸マンション
デルソレ二の宮
305
2LDK
福井市二の宮3丁目8-2
賃料
58,000円
共益費
4,500円
駐車料
6,000円
賃貸マンション / 2LDK
福井市の賃貸マンション / デルソレ二の宮 / 外観写真
オートロック完備!人気エリアの2LDK!Wi-Fi導入済み!
福井市の賃貸マンション / デルソレ二の宮 / 詳細
賃貸マンション
ヴィラ高島
302
2LDK
福井市西木田2丁目9-13
賃料
60,000円
共益費
0円
駐車料
5,000円
賃貸マンション / 2LDK
福井市の賃貸マンション / ヴィラ高島 / 外観写真
最寄駅まで徒歩2分!インターネット無料の物件が空いてきます♪
福井市の賃貸マンション / ヴィラ高島 / 詳細
賃貸マンション
ストークマンション福井
505
2LDK
福井市勝見3丁目14-27
賃料
57,000円
共益費
5,000円
駐車料
5,500円
賃貸マンション / 2LDK
福井市の賃貸マンション / ストークマンション福井 / 外観写真
敷金・礼金・仲介手数料0円キャンペーン!※個人契約のみ
福井市の賃貸マンション / ストークマンション福井 / 詳細
賃貸マンション
フレグランス川口
A12
2LDK
福井市引目町5-106
賃料
55,000円
共益費
0円
駐車料
0円
賃貸マンション / 2LDK
福井市の賃貸マンション / フレグランス川口 / 外観写真
★ペット飼育可★駐車場2台付き♪仲介手数料0円♪
福井市の賃貸マンション / フレグランス川口 / 詳細
賃貸マンション
フレグランス川口
A21
2LDK
福井市引目町5-106
賃料
55,000円
共益費
0円
駐車料
0円
賃貸マンション / 2LDK
福井市の賃貸マンション / フレグランス川口 / 外観写真
仲介手数料0円!ペット飼育可能な物件です!
福井市の賃貸マンション / フレグランス川口 / 詳細
賃貸マンション
アクア・フェザー B
201
2LDK
福井市板垣5丁目1304
賃料
52,500円
共益費
2,800円
駐車料
3,300円
賃貸マンション / 2LDK
福井市の賃貸マンション / アクア・フェザー B / 外観写真
サンルーム付きで雨の日に便利です★
福井市の賃貸マンション / アクア・フェザー B / 詳細
賃貸マンション
リビングタウン若杉 A
202
2LDK
福井市若杉3丁目1008
賃料
69,000円
共益費
6,000円
駐車料
3,300円
賃貸マンション / 2LDK
福井市の賃貸マンション / リビングタウン若杉 A / 外観写真
追焚機能付き1坪風呂でのんびり!
福井市の賃貸マンション / リビングタウン若杉 A / 詳細
賃貸マンション
セレノII
201
2LDK
福井市灯明寺3丁目1207
賃料
61,500円
共益費
3,600円
駐車料
3,300円
賃貸マンション / 2LDK
福井市の賃貸マンション / セレノII / 外観写真
サンルーム・ウォークインクローゼット♪インターネット無料
福井市の賃貸マンション / セレノII / 詳細
賃貸マンション
キーウエスト B
201
2LDK
福井市福2丁目611番地
賃料
50,000円
共益費
3,300円
駐車料
3,300円
賃貸マンション / 2LDK
福井市の賃貸マンション / キーウエスト B / 外観写真
お買物に便利な立地です☆サンルーム有り♪
福井市の賃貸マンション / キーウエスト B / 詳細
賃貸マンション
ファミール五反田
503
2LDK
福井市二の宮4丁目39-23
賃料
84,000円
共益費
7,000円
駐車料
6,100円
賃貸マンション / 2LDK
福井市の賃貸マンション / ファミール五反田 / 外観写真
ひろーい20帖のリビング^^サンルーム有ります♪
福井市の賃貸マンション / ファミール五反田 / 詳細
賃貸マンション
トゥインクルEVATA B棟
201
2LDK
福井市江端町12-6
賃料
61,000円
共益費
5,000円
駐車料
3,300円
賃貸マンション / 2LDK
福井市の賃貸マンション / トゥインクルEVATA B棟 / 外観写真
江端駅まで徒歩3分の好立地♪設備も充実♪
福井市の賃貸マンション / トゥインクルEVATA B棟 / 詳細
賃貸マンション
ドリ-ムハイツIII
201
2LDK
福井市加茂河原1丁目5番2号
賃料
48,000円
共益費
3,200円
駐車料
2,200円
賃貸マンション / 2LDK
福井市の賃貸マンション / ドリ-ムハイツIII / 外観写真
コンビニまで徒歩3分♪洋室+和室の2LDK♪
福井市の賃貸マンション / ドリ-ムハイツIII / 詳細
賃貸マンション
ファミール五反田
103
2LDK
福井市二の宮4丁目39-23
賃料
85,000円
共益費
7,000円
駐車料
5,500円
賃貸マンション / 2LDK
福井市の賃貸マンション / ファミール五反田 / 外観写真
ひろーい20帖のリビング☆エアコン3台付き♪
福井市の賃貸マンション / ファミール五反田 / 詳細
賃貸マンション
プロディジュー ヴィラ
203
2LDK
福井市東森田4丁目510番地
賃料
63,000円
共益費
4,400円
駐車料
5,500円
賃貸マンション / 2LDK
福井市の賃貸マンション / プロディジュー ヴィラ / 外観写真
サンルーム☆エアコン2台付き☆ウォークインクローゼット有り
福井市の賃貸マンション / プロディジュー ヴィラ / 詳細
賃貸マンション
コンフォートヴィレッジ B
202
2LDK
福井市渕4丁目2307
賃料
63,000円
共益費
5,500円
駐車料
3,300円
賃貸マンション / 2LDK
福井市の賃貸マンション / コンフォートヴィレッジ B / 外観写真
ペット飼育可2LDK☆角部屋☆
福井市の賃貸マンション / コンフォートヴィレッジ B / 詳細
賃貸マンション
メゾン.オ-ブ
102
2LDK
福井市丸山3丁目305
賃料
54,000円
共益費
2,500円
駐車料
5,500円
賃貸マンション / 2LDK
福井市の賃貸マンション / メゾン.オ-ブ / 外観写真
人気のメゾネットタイプです♪
福井市の賃貸マンション / メゾン.オ-ブ / 詳細
賃貸マンション
エントピア A棟
202
2LDK
福井市渕4丁目807
賃料
75,000円
共益費
6,500円
駐車料
1,100円
賃貸マンション / 2LDK
福井市の賃貸マンション / エントピア A棟 / 外観写真
人気のオール電化☆お買物に便利な立地です♪
福井市の賃貸マンション / エントピア A棟 / 詳細
賃貸マンション
ヴィラ ルナ A棟
201
2LDK
福井市月見2丁目11-13
賃料
69,000円
共益費
7,000円
駐車料
3,300円
賃貸マンション / 2LDK
福井市の賃貸マンション / ヴィラ ルナ A棟 / 外観写真
オール電化☆エコキュート仕様☆インターネット無料
福井市の賃貸マンション / ヴィラ ルナ A棟 / 詳細
賃貸マンション
ハミング ライフ I
202
2LDK
福井市新田塚2丁目96番7号
賃料
71,000円
共益費
4,100円
駐車料
3,300円
賃貸マンション / 2LDK
福井市の賃貸マンション / ハミング ライフ I / 外観写真
サンルーム付き★収納ばっちり♪
福井市の賃貸マンション / ハミング ライフ I / 詳細
賃貸マンション
ヴィクトワール
101
2LDK
福井市下馬1丁目512
賃料
61,000円
共益費
5,000円
駐車料
3,300円
賃貸マンション / 2LDK
福井市の賃貸マンション / ヴィクトワール / 外観写真
広めのバルコニー♪公園まで徒歩2分♪
福井市の賃貸マンション / ヴィクトワール / 詳細
賃貸マンション
セレーノ・藤
201
2LDK
福井市足羽4丁目18番20号
賃料
72,000円
共益費
4,800円
駐車料
3,300円
賃貸マンション / 2LDK
福井市の賃貸マンション / セレーノ・藤 / 外観写真
ペット飼育可能物件です★サンルーム付き★
福井市の賃貸マンション / セレーノ・藤 / 詳細
賃貸マンション
アリスタウン
201
2LDK
福井市狐橋1-204
賃料
62,000円
共益費
5,300円
駐車料
5,500円
賃貸マンション / 2LDK
福井市の賃貸マンション / アリスタウン / 外観写真
インターネット使用料無料★
福井市の賃貸マンション / アリスタウン / 詳細
賃貸マンション
サニー セイバリ IV
202
2LDK
福井市河合寄安町1902番地
賃料
63,500円
共益費
4,500円
駐車料
3,300円
賃貸マンション / 2LDK
福井市の賃貸マンション / サニー セイバリ IV / 外観写真
サンルーム・ウォークインクローゼット有り★エアコン2台
福井市の賃貸マンション / サニー セイバリ IV / 詳細
賃貸マンション
ヌーベル
203
2LDK
福井市東森田4丁目118番地
賃料
68,500円
共益費
5,600円
駐車料
5,500円
賃貸マンション / 2LDK
福井市の賃貸マンション / ヌーベル / 外観写真
ドラッグストアまで徒歩5分♪サンルーム有ります♪
福井市の賃貸マンション / ヌーベル / 詳細
賃貸マンション
メゾン定正 A
105
2LDK
福井市定正町804番地
賃料
68,000円
共益費
6,500円
駐車料
5,500円
賃貸マンション / 2LDK
福井市の賃貸マンション / メゾン定正 A / 外観写真
追焚機能・浴室乾燥機付き一坪風呂☆
福井市の賃貸マンション / メゾン定正 A / 詳細
賃貸マンション
クレール森田 A
105
2LDK
福井市下森田新町710番地
賃料
62,000円
共益費
6,500円
駐車料
3,300円
賃貸マンション / 2LDK
福井市の賃貸マンション / クレール森田 A / 外観写真
人気の対面キッチン!専用庭有ります★
福井市の賃貸マンション / クレール森田 A / 詳細
パートナーシップ構築宣言
Copyright © 住みかえ情報館 All rights reserved.
住みかえ情報館 企業情報 営業所案内 求人情報 住みかえTV
  • 利用規約
  • 個人情報保護方針(プライバシーポリシー)
  • ケアフルハウス